Bouwgrond (projecten)
€ 700.000

Stoopkensstraat 18, 3320 Hoegaarden
    • delen

Omschrijving Ref.: 7522042

Projectgrond


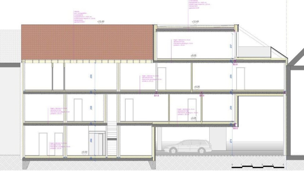
Projectgrond te koop in Hoegaarden – Vergund voor 6 appartementen.

In het centrum van Hoegaarden bieden wij u een vergunde projectgrond aan voor de bouw van 6 moderne appartementen. Dit project omvat daarnaast 9 bovengrondse parkeerplaatsen en een fietsenstalling, wat bijdraagt aan het wooncomfort van de toekomstige bewoners.
Gelegen in een rustige, groene omgeving met vlotte verbindingen naar belangrijke uitvalswegen, biedt deze locatie het beste van twee werelden: de charme van Hoegaarden en de nabijheid van stedelijke voorzieningen. Goedgekeurde plannen zijn aanwezig! De vraagprijs bedraagt €700.000.
Een uitstekende kans voor projectontwikkelaars die op zoek zijn naar een kant-en-klaar bouwproject op een aantrekkelijke locatie. Interesse? Neem vandaag nog contact met ons op voor meer informatie via info@bondimmo.be.


BOND immo Leuven

Vragen over deze eigendom ref: 7522042
contact

Details van het pand

Financieel

Prijs
€ 700.000,00
Onder BTW stelsel
Nee
Beschikbaarheid
Vanaf akte

Terrein

Grondoppervlakte
646,00 m²

Energie

Co2 uitstoot
0 kg/kWh

Technieken

Elektriciteit
Ja
Gas
Ja
Water
Ja

Stedenbouw

Bestemming
Woongebied met landelijk karakter
Bouwvergunning
Ja
Verkavelingsvergunning
Ja
Voorkooprecht
Nee
Dagvaarding
Geen rechterlijke herstelmaatregel of bestuurlijke maatregel opgelegd
G-score
D
P-score
D
Watergevoelig openruimtegebied
Nee

Meer info over deze eigendom

Bedankt voor je bericht, we contacteren je zo spoedig mogelijk.
Er was een probleem bij het versturen van het formulier, gelieve opnieuw te proberen.
(*) Gelieve de verplichte velden in te vullen.